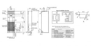
Description
FDF125VD
Floor Standing - Indoor Unit
FDF125VNVD
Floor standing PAC indoor unit with a nominal cooling capacity of 12.5 kW.
Technical Specifications
| Nominal cooling capacity (min-max) | kW | 12.5 (5.0 - 14.0) |
| Nominal heating capacity (min-max) | kW | 14.0 (4.0 - 16.0) |
| Exterior Dimensions (H x W x D) | mm | Unit:1850 x 600 x 320 |
| Net Weight | kg | 52 |
| Air Flow Cooling (Hi/Me/Lo) | m3/min | 29 / 26 / 23 / 19 |
| Air Flow Heating (Hi/Me/Lo) | m3/min | 29 / 26 / 23 / 19 |
| Sound Pressure Level Cooling (Hi/Me/Lo) | dB(A) | 54 / 50 / 48 / 44 |
| Sound Pressure Level Heating (Hi/Me/Lo) | dB(A) | 54 / 50 / 48 / 44 |
Schematics

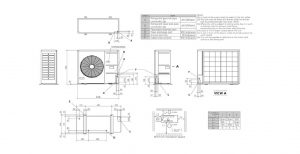
Floor Standing - Outdoor Unit
FDC125VN
PAC outdoor unit with a nominal cooling capacity of 12.5 kW.
Technical Specifications
| Nominal cooling capacity (min-max) | kW | 12.5 (5.0 - 14.0) |
| Nominal heating capacity (min-max) | kW | 14.0 (4.0 - 16.0) |
| EER (Energy Label) | - | 2.84 |
| COP (Energy Label) | - | 3.21 |
| Exterior Dimensions (H x W x D) | mm | 845 x 970 x 370 |
| Net Weight | kg | 81 |
| Sound Pressure Level (Cooling/Heating) | dB(A) | 50 / 51 |
| Power Source | - | 1 Phase 220-240V 50Hz, 1 Phase 220V 60Hz |
| Inrush current (220/230/240v) | A | 5 |
| Max. running current | A | 24 |
| Power consumption (Cooling/Heating) | kW | 4.40 / 4.36 |
| Ref. Piping Size (Liquid/Gas) | Ø mm | 9.52 (3/8") / 15.88 (5/8") |
| Ref. Max Piping Length | m | Max. 50 |
| Vertical Height differences / Outdoor is higher/lower | m | Max. 30 / Max. 15 |
Schematics

