Описание
FDTC50VF x2
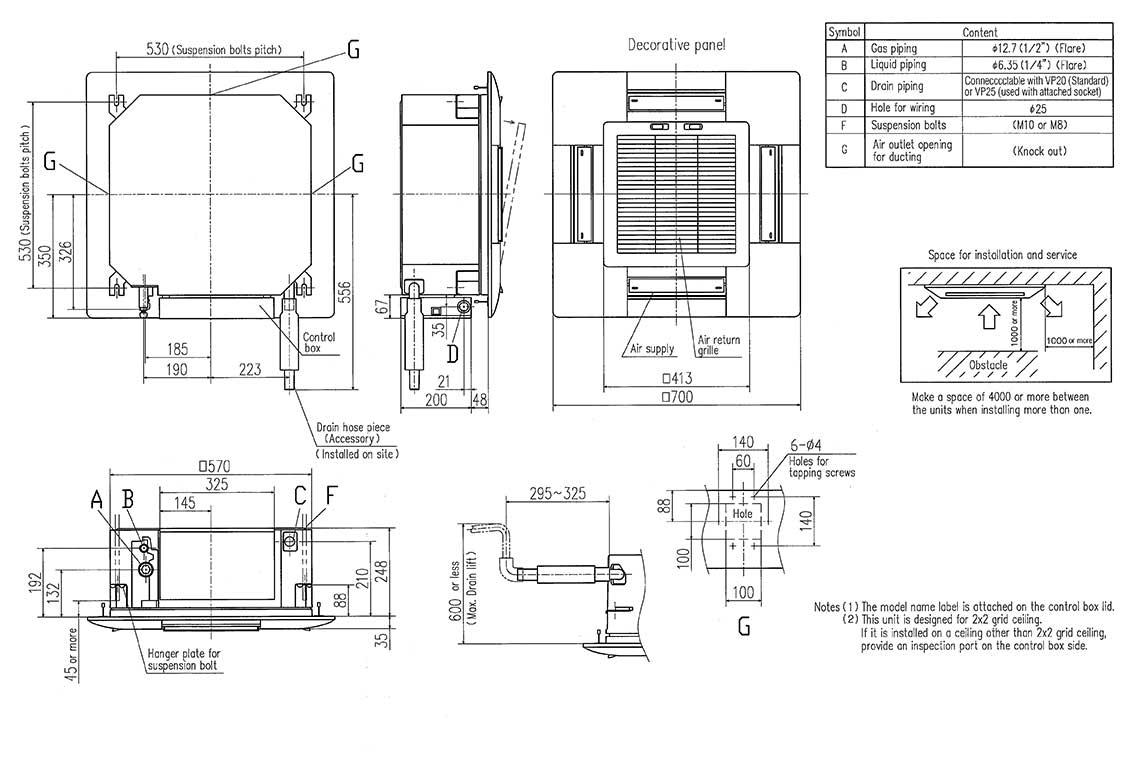
Compact Ceiling Cassette - Indoor Unit
FDTC100VSXPVF
Ceiling cassette PAC indoor unit with a nominal cooling capacity of 5.0 kW.
Technical Specifications
| Nominal cooling capacity (min-max) | kW | 10.0 (4.0 - 11.2) |
| Nominal heating capacity (min-max) | kW | 11.2 (4.0 - 16.0) |
| Exterior Dimensions (H x W x D) | mm | Unit: 248 x 570 x 570; Panel: 35 x 700 x 700 |
| Net Weight | kg | 18.5 (Unit: 15; Panel: 3.5) |
| Air Flow Cooling (Hi/Me/Lo) | m3/min | 13.5/ 11.5 / 9 / 7 |
| Air Flow Heating (Hi/Me/Lo) | m3/min | 13. 5/ 11.5 / 9 / 8 |
| Sound Pressure Level Cooling (Hi/Me/Lo) | dB(A) | 47 / 42 / 36 / 30 |
| Sound Pressure Level Heating (Hi/Me/Lo) | dB(A) | 47 / 42 / 36 / 32 |
Schematics
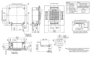
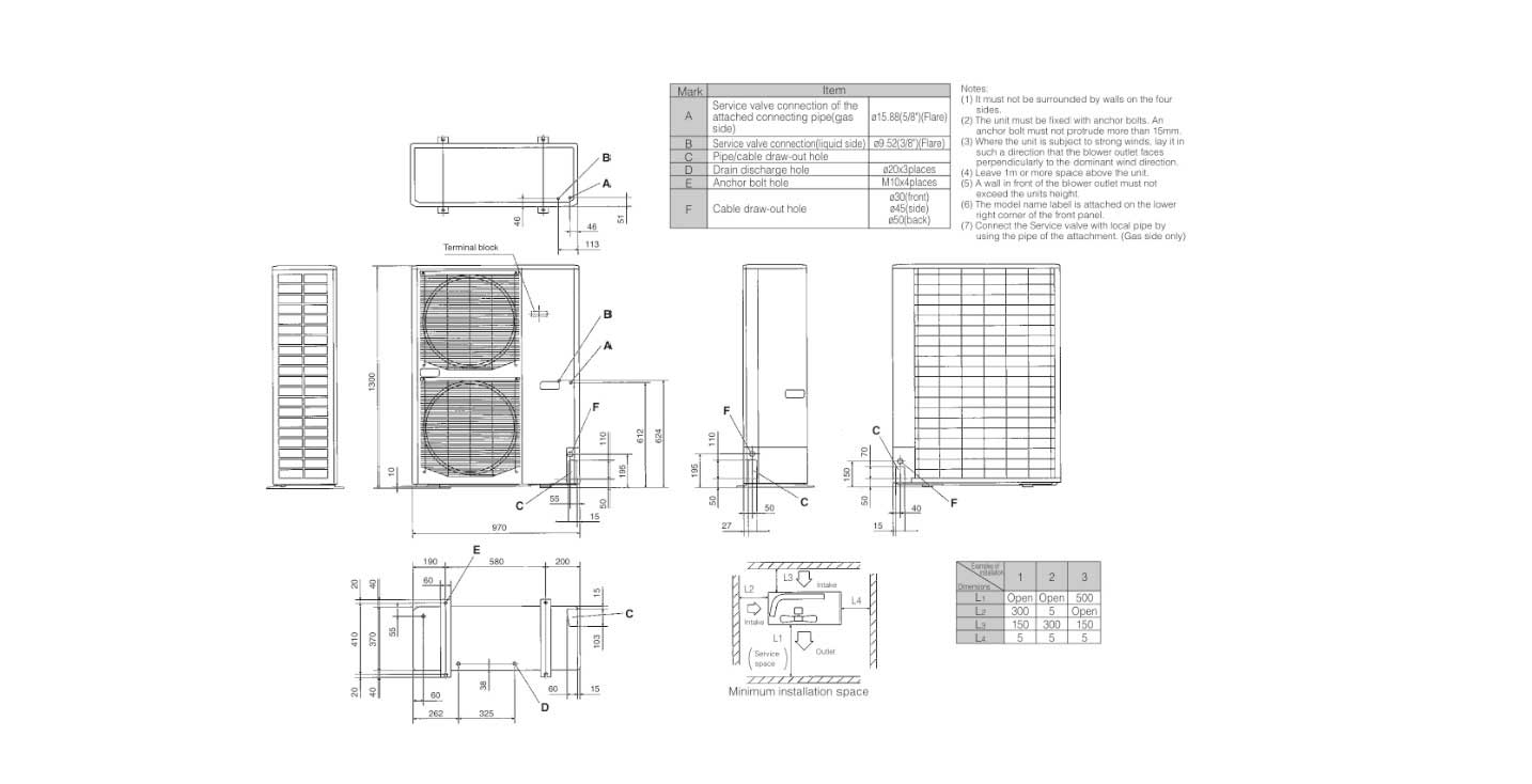
Compact Ceiling cassette - Outdoor Unit
FDC100VSX
PAC outdoor unit with a nominal cooling capacity of 10.0 kW.
Technical Specifications
| Nominal cooling capacity (min-max) | kW | 10.0 (4.0 - 11.2) |
| Nominal heating capacity (min-max) | kW | 11.2 (4.0 - 16.0) |
| EER (Energy Label) | - | 3.14 |
| COP (Energy Label) | - | 3.50 |
| Exterior Dimensions (H x W x D) | mm | 1300 x 970 x 370 |
| Net Weight | kg | 105 |
| Sound Pressure Level (Cooling/Heating) | dB(A) | 48/50 |
| Energy class (Cooling/Heating) | -- | A/A |
| SEER "Average climate"/(Energy label) | -- | 5.19 |
| SCOP "Average climate"/(Energy label) | -- | 3.86 |
| Pdesignc | kW | 10 |
| Pdesignh (@-10°C) | kW | 10.2 |
| Annual electricity consumption (Cooling/Heating) | kWh/a | 674 / 3695 |
| Power Source | - | 3 Phase 380-415V 50Hz, 3 Phase 380V 60Hz |
| Inrush current (220/230/240v) | A | 5 |
| Max. running current | A | 15 |
| Power consumption (Cooling/Heating) | kW | 3.18 / 3.20 |
| Refrigerant (GWP) | - | R410A (2088) |
| Designated heating season | - | Average |
| Ref. Piping Size (Liquid/Gas) | Ø mm | 9.52 (3/8") / 15.88 (5/8") |
| Ref. Max Piping Length | m | Max. 100 |
| Vertical Height differences / Outdoor is higher/lower | m | Max. 30 / Max. 15 |


