Описание
FDT60VF x4
Ceiling Cassette — Indoor Unit
FDT250VSADVF
Ceiling cassette PAC indoor unit with a nominal cooling capacity of 6.0 kW.
Technical Specifications
| Nominal cooling capacity (min-max) | kW | 24.0 ( 6.9 — 28.0 ) |
| Nominal heating capacity (min-max) | kW | 27.0 ( 5.5- 31.5 ) |
| Exterior Dimensions (H x W x D) | mm | Unit: 246 x 840 x 840; Panel: 35 x 950 x 950 |
| Net Weight | kg | 29.5 (Unit: 24; Panel: 5.5) |
| Air Flow Cooling (Hi/Me/Lo) | m3/min | 28/ 18 / 16 / 14 |
| Air Flow Heating (Hi/Me/Lo) | m3/min | 28/ 18 / 16 / 14 |
| Sound Pressure Level Cooling (Hi/Me/Lo) | dB(A) | 46/ 33 / 31 / 30 |
| Sound Pressure Level Heating (Hi/Me/Lo) | dB(A) | 46/ 33 / 31 / 30 |
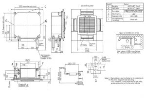
Schematics
Ceiling cassette — Outdoor Unit
FDC250VSA
PAC outdoor unit with a nominal cooling capacity of 25.0 kW.
Technical Specifications
| Nominal cooling capacity (min-max) | kW | 24.0 ( 6.9-28.0 ) |
| Nominal heating capacity (min-max) | kW | 27.0 ( 5.5- 31.5 ) |
| EER (Energy Label) | — | 3.23 |
| COP (Energy Label) | — | 3.95 |
| Exterior Dimensions (H x W x D) | mm | 1505 x 970 x 370 |
| Net Weight | kg | 140 |
| Sound Pressure Level (Cooling/Heating) | dB(A) | 59/62 |
| Power Source | — | 3 Phase 380-415V, 50Hz, 3 Phase 380V 60Hz |
| Inrush current (220/230/240v) | A | 5 |
| Max. running current | A | 22 |
| Power consumption (Cooling/Heating) | kW | 7.42 / 6.83 |
| Ref. Piping Size (Liquid/Gas) | Ø mm | 12.7 (1/2″) / 22.22 (7/8″) |
| Ref. Max Piping Length | m | Max. 70 |
| Vertical Height differences / Outdoor is higher/lower | m | Max. 30 / Max. 15 |


