Açıklama
FDTC50VF x3
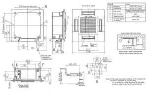
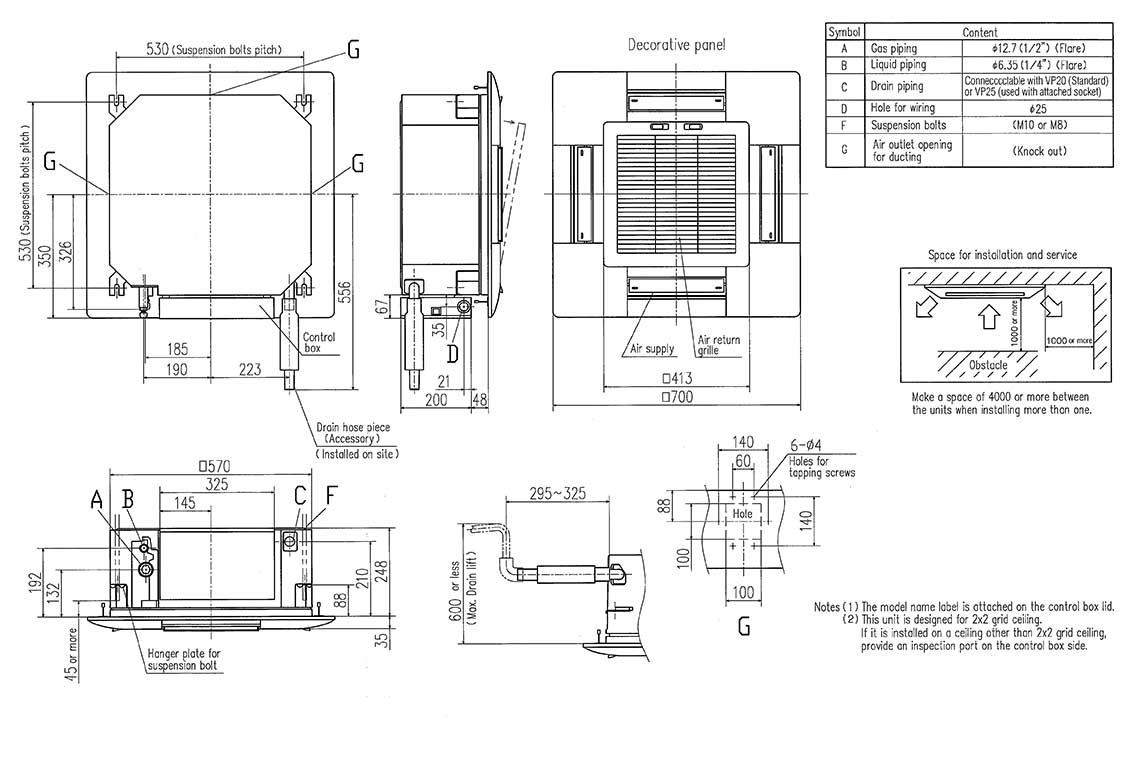
Compact Ceiling Cassette – Indoor Unit
FDTC140VNXTVF
Ceiling cassette PAC indoor unit with a nominal cooling capacity of 5.0 kW.
Technical Specifications
| Nominal cooling capacity (min-max) | kW | 14.0 (5.0 – 16.0) |
| Nominal heating capacity (min-max) | kW | 16.0 (4.0 – 18.0) |
| Exterior Dimensions (H x W x D) | mm | Unit: 248 x 570 x 570; Panel: 35 x 700 x 700 |
| Net Weight | kg | 18.5 (Unit: 15; Panel: 3.5) |
| Air Flow Cooling (Hi/Me/Lo) | m3/min | 13.5/ 11.5 / 9 / 7 |
| Air Flow Heating (Hi/Me/Lo) | m3/min | 13.5/ 11.5 / 9 / 8 |
| Sound Pressure Level Cooling (Hi/Me/Lo) | dB(A) | 47/ 42 / 36 / 30 |
| Sound Pressure Level Heating (Hi/Me/Lo) | dB(A) | 47/ 42 / 36 / 32 |
Schematics
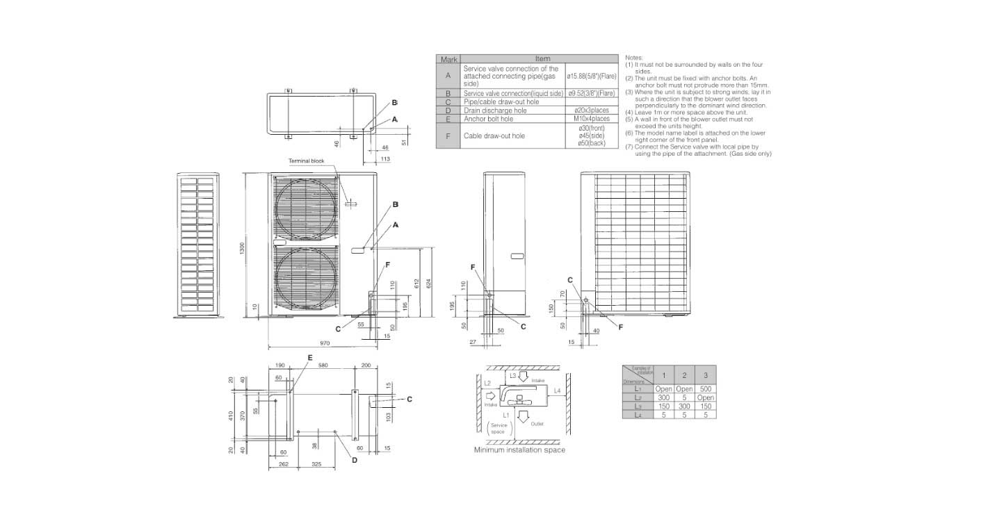
Compact Ceiling cassette – Outdoor Unit
FDC140VNX
PAC outdoor unit with a nominal cooling capacity of 14.0 kW.
Technical Specifications
| Nominal cooling capacity (min-max) | kW | 14.0 (5.0 – 16.0) |
| Nominal heating capacity (min-max) | kW | 16.0 (4.0 – 18.0) |
| EER (Energy Label) | – | 3.23 |
| COP (Energy Label) | – | 3.69 |
| Exterior Dimensions (H x W x D) | mm | 1300 x 970 x 370 |
| Net Weight | kg | 105 |
| Sound Pressure Level (Cooling/Heating) | dB(A) | 49/52 |
| Power Source | – | 1 Phase 220-240V 50Hz, 1 Phase 220V 60Hz |
| Inrush current (220/230/240v) | A | 5 |
| Max. running current | A | 26 |
| Power consumption (Cooling/Heating) | kW | 4.34 / 4.34 |
| Ref. Piping Size (Liquid/Gas) | Ø mm | 9.52 (3/8″) / 15.88 (5/8″) |
| Ref. Max Piping Length | m | Max. 100 |
| Vertical Height differences / Outdoor is higher/lower | m | Max. 30 / Max. 15 |


